



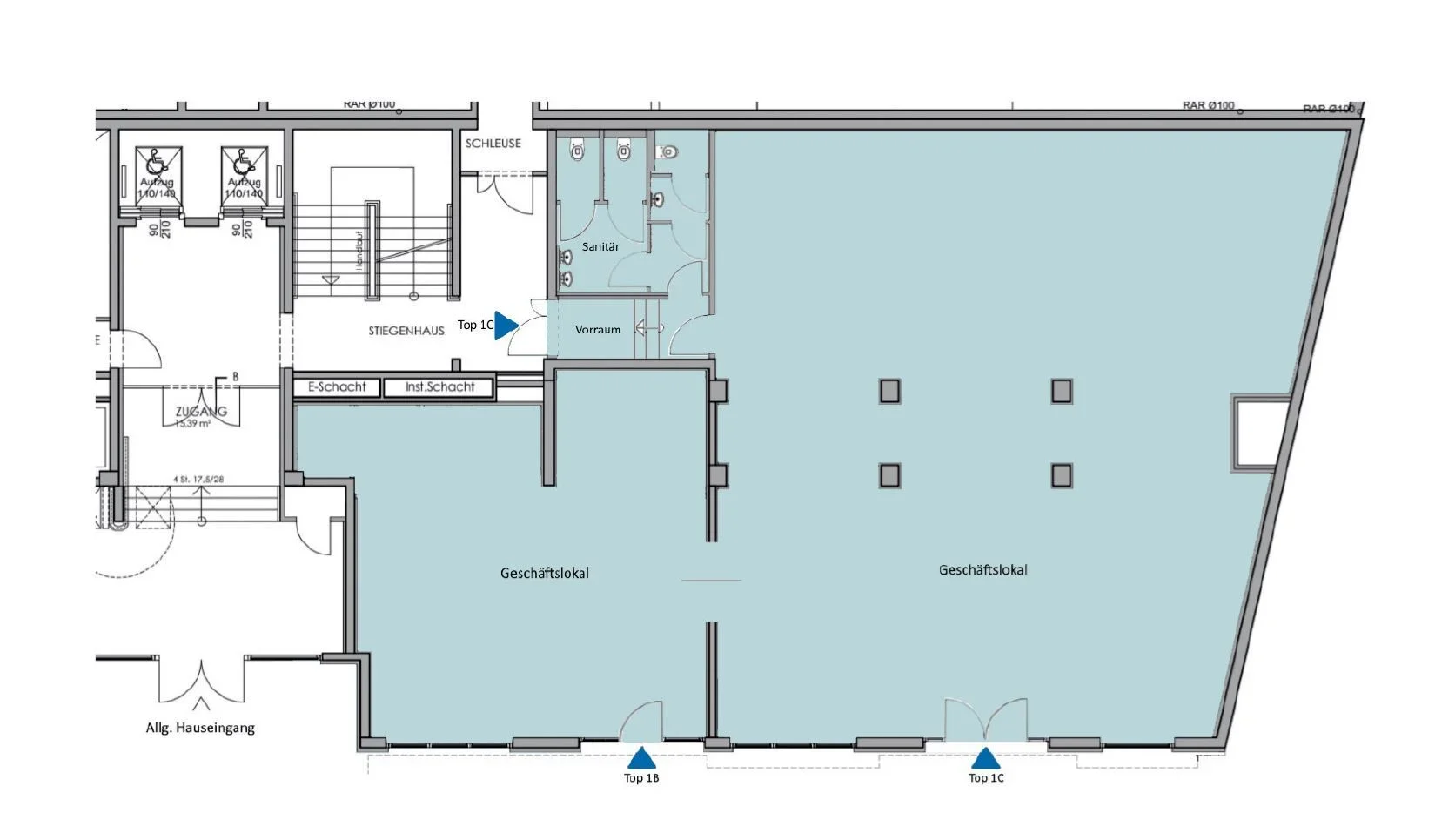
In unmittelbarer Nähe zur Mariahilfer Straße befindet sich dieses Geschäftslokal, bestehend aus Top 1B und 1C, in einem 2017 fertiggestellten Neubau.
Das Gebäude verfügt über einen Zugang sowohl über die Windmühlgasse als auch über die Mariahilfer Straße (durch die hauseigene Parkgarage “WIPARK”), ein klarer Vorteil für Sichtbarkeit und Erreichbarkeit.
Die beiden Geschäftslokale Top 1B und 1C sind gemeinsam an einen Franchisenehmer der renommierten australischen F45 Fitness Studios (Spezialist für funktionale Workout- und Fitnessprogramme) unbefristet vermietet. Die Übergabe an den Mieter erfolgte belagsfertig, der vereinbarungsgemäß auf eigene Kosten Adaptierungsmaßnahmen gesetzt hat und den Innenausbau für seinen Gewerbebetrieb selbst durchführte.
Top 1B und 1C haben eine Gesamtfläche von 277,48m².
Der jährliche Nettomietertrag beträgt aktuell EUR 44.567,04.
Profitieren Sie bei einer 4,5% hohen Rendite von einem stabilen und international anerkannten Mieter, der sich am Standort Wien bereits erfolgreich etabliert hat.
Der Kaufpreis von EUR 985.000,00 versteht sich zuzüglich 20% Umsatzsteuer.
PROVISIONSFREI – DIREKT VOM EIGENTÜMER!
Für weitere Informationen stehen wir Ihnen gerne unter 01 923 44 01 zur Verfügung.
Kaufpreis:
€ 985.000,00
Provision:
Grundbucheintragungsgebühr:
1,1 %
Grunderwerbsteuer:
3,5 %
Nettoertrag:
€ 44.567,04
Rendite:
4,5 %
Immobilientyp:
Nutzungsart:
Nutzfläche:
277,48 m²
Etage:
Zustand:
Verfügbarkeit:
Heizungsart:
Energiekennwert:
26,28 kWh/m²a
Energieeffizienzklasse:
Adresse:
Lagebeschreibung:
Die Liegenschaft befindet sich in zentraler, begehrter Lage im 6. Bezirk Mariahilf, direkt verbunden mit der Mariahilfer Straße und nur wenige Gehminuten vom Naschmarkt entfernt, welche die Liegenschaft zu einem attraktiven Investment für Anleger mit Fokus auf langfristige Wertbeständigkeit macht.
Infrastruktur & Verkehrsanbindung:
Die Umgebung bietet eine ausgezeichnete Infrastruktur: Einkaufsmöglichkeiten, Gastronomie, Büros und Kultureinrichtungen befinden sich im direkten Umfeld.
Die Verkehrsanbindung ist hervorragend – U3 (Neubaugasse), U4 (Kettenbrückengasse) sowie mehrere Bus- und Straßenbahnlinien sind in wenigen Minuten zu Fuß erreichbar.
Majer Immobilien Holding GmbH
Stumpergasse 47/1/4
1060 Wien
T: +43 1 923 44 01
F: +43 1 923 44 01–10
© Majer Immobilien Holding GmbH 2025 | All rights reserved | Website crafted with love by CREADOMA